




Aceasta proprietate nu mai este activa! Pentru oferte similare contactati agentul
retras
Apartament 2 Camere Decomandat - Galata, Platoul Insorit
Iasi, Galata
69.990€
Camere
2
Suprafata utila
62 mp
Suprafata construita
65 mp
Etaj
Etaj 4
Bai
1
Parcari
1
- ID:P8729
- Nr. camere:2
- Nr. dormitoare:1
- S. utila:62.00 mp
- S. construita:65.00 mp
- Comp.:Decomandat
- Confort:1
- Etaj:Etaj 4
- Nr. bucatarii:1
- Nr. bai:1
- Nr. parcari:1
- An constructie:2019
- Structura:Beton
- Tip imobil:Bloc
- Regim inaltime:P+4
- Orientare:Sud-Est
Descriere
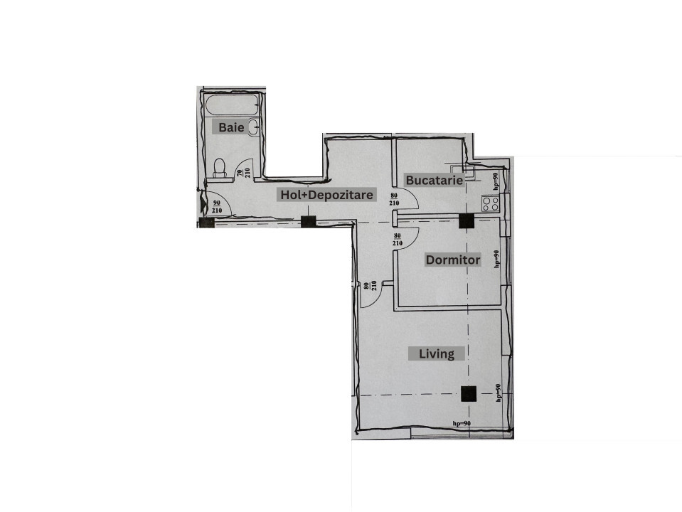
Apartamentul de vanzare este situat in Iasi, zona Galata (Platorul Insorit) si este compus din 2 camere decomandat si dependinte.
Are o suprafata de 62 mp si este situat la etajul 4 intr-o cladire cu 4 etaje.
Apartamentul dispune de loc de parcare inclus in pret, gaz metan, apometre, faianta, tamplarie termopan si termosistem.
Cladirea , construita in 2019, are acces la strada principala (Soseaua Voinesti), are in jur spatii de agrement si o structura tip pe cadre, fara risc seismic.
Pentru detalii: 0️⃣7️⃣5️⃣0️⃣4️⃣1️⃣5️⃣8️⃣8️⃣7️⃣
Citeste mai mult
Are o suprafata de 62 mp si este situat la etajul 4 intr-o cladire cu 4 etaje.
Apartamentul dispune de loc de parcare inclus in pret, gaz metan, apometre, faianta, tamplarie termopan si termosistem.
Cladirea , construita in 2019, are acces la strada principala (Soseaua Voinesti), are in jur spatii de agrement si o structura tip pe cadre, fara risc seismic.
Pentru detalii: 0️⃣7️⃣5️⃣0️⃣4️⃣1️⃣5️⃣8️⃣8️⃣7️⃣
Specificatii
Curent
Apa
Canalizare
Fibra optica
Izolatie Exterior
Var
Faianta
Ferestre PVC
Usa intrare Metal
Bucatarie Nemobilata
Bucatarie Neutilata
Apometre
Contor caldura
Contor gaz
Nemobilat
Videointerfon
Lift
Esti interesat de aceasta proprietate ?