









Spatiu de Birou/Comercial 240m2 zona Baza 3
Iasi, Baza 3
2.000€
Camere
2
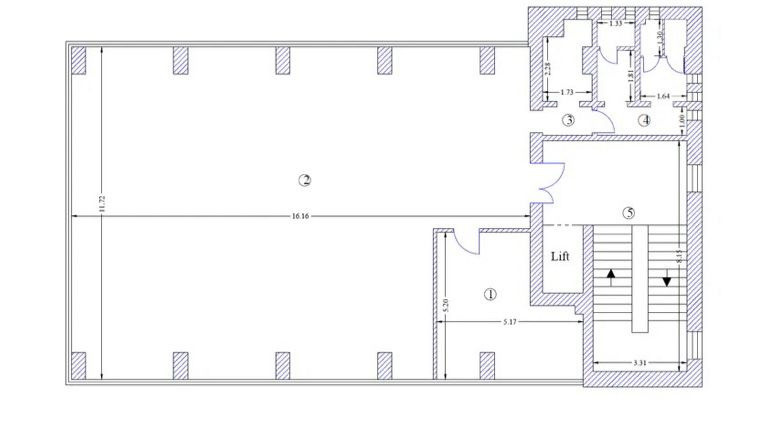
Suprafata utila
240 mp
Suprafata construita
300 mp
Parcari
15
An constructie
2021
- ID:P12168
- Nr. camere:2
- S. utila:240.00 mp
- S. construita:300.00 mp
- Comp.:Open space
- Nr. bai:2
- Nr. parcari:15
- An constructie:2021
- Structura rezistenta:Beton
- Regim inaltime:P+5+M
Descriere
OFERTA AVANTAJOASA !!!
Prețul este de 2.000 EURO/luna ( 8,33 euro/m2 ) - negociabil !! 240m2 - Etaj 2!
Se oferă spre inchiriere un spațiu de birou sau comercial tip open-space în suprafață de 240m2 situat la Etajul 2 a unei cladiri de birouri situată în zona Baza 3 /zona industrială, profitând de un trafic auto si pietonal intens și vad o zonă comercială generosă, fiind poziționată în imediata aproprie stație de tramvai și autobuz. Un aspect foarte important cladirea dispune de autorizatie ISU.
1.) Etaj 2 - 240m2 x 8.33 euro/m2 = 2.000 EURO/luna.
Imobilul este finalizat, open-space, recent renovat complet (ex. instaltii electrice, sanitare, internet, sistem anti-incendiu, sistem de climatizare rece-cald) cu finisaje de calitate (parchet trafic intens, gresie in vestiar si grupurile sanitare etc).
Spatiul dispune de finisaje și dotări premium pentru standarte de clasa A precum:
- Podea tehnologică cu parchet de trafic intens si gresie/granit(casa scarii);
- Tavan fals&corpuri de iluminat LED;
- Sistem modern de climatizare și ventilare rece-cald;
- Sistem de detecție și alarmare cu senzori de fum, centrala anti incendiu, sistem desfumare;
- Contorizare individuală(apometru, contor pasant electric);
- Rețelistică internet CAT6E, rack cu switch individual;
- Aparataj Schneider, monitorizare video interior si exterior, iluminat exterior și interior LED;
- Tamplarie termopan 3 laturi (50ml de geamuri);
- Clădirea dispune de peste 50 locuri de parcare gratuite;
Se pretează ideal pentru activitati de tip: sali de sport, activitati fizice/recreative, sala de dans, spatiu de birou pretabil pentru call center, suport center, firme IT, administrativ, contabilitate, proiectare, arhitectura etc.
Citeste mai mult
Prețul este de 2.000 EURO/luna ( 8,33 euro/m2 ) - negociabil !! 240m2 - Etaj 2!
Se oferă spre inchiriere un spațiu de birou sau comercial tip open-space în suprafață de 240m2 situat la Etajul 2 a unei cladiri de birouri situată în zona Baza 3 /zona industrială, profitând de un trafic auto si pietonal intens și vad o zonă comercială generosă, fiind poziționată în imediata aproprie stație de tramvai și autobuz. Un aspect foarte important cladirea dispune de autorizatie ISU.
1.) Etaj 2 - 240m2 x 8.33 euro/m2 = 2.000 EURO/luna.
Imobilul este finalizat, open-space, recent renovat complet (ex. instaltii electrice, sanitare, internet, sistem anti-incendiu, sistem de climatizare rece-cald) cu finisaje de calitate (parchet trafic intens, gresie in vestiar si grupurile sanitare etc).
Spatiul dispune de finisaje și dotări premium pentru standarte de clasa A precum:
- Podea tehnologică cu parchet de trafic intens si gresie/granit(casa scarii);
- Tavan fals&corpuri de iluminat LED;
- Sistem modern de climatizare și ventilare rece-cald;
- Sistem de detecție și alarmare cu senzori de fum, centrala anti incendiu, sistem desfumare;
- Contorizare individuală(apometru, contor pasant electric);
- Rețelistică internet CAT6E, rack cu switch individual;
- Aparataj Schneider, monitorizare video interior si exterior, iluminat exterior și interior LED;
- Tamplarie termopan 3 laturi (50ml de geamuri);
- Clădirea dispune de peste 50 locuri de parcare gratuite;
Se pretează ideal pentru activitati de tip: sali de sport, activitati fizice/recreative, sala de dans, spatiu de birou pretabil pentru call center, suport center, firme IT, administrativ, contabilitate, proiectare, arhitectura etc.
Specificatii
Curent
Apa
Canalizare
Gaz
CATV
Acces internet
Fibra optica
Utilitati in zona
Centrala proprie
Calorifere
Ventiloconvectoare
Izolatie Exterior
Vopsea lavabila
Parchet
Gresie
Ferestre PVC
Ferestre Termopan
Aplice
Lumina naturala
Apometre
Contor gaz
Partial mobilat
Interfon
Lift
Curte comuna
Marc Astefanoaei
0748048984
Esti interesat de aceasta proprietate ?