



0% comision
Reprezentare exclusiva
Bd. Timisoara, CUT = 3, P+14 - 12 minute Metrou Valea Ialomitei
Bucuresti, Timisoara
2.350.000€ + TVA
- ID:P12495
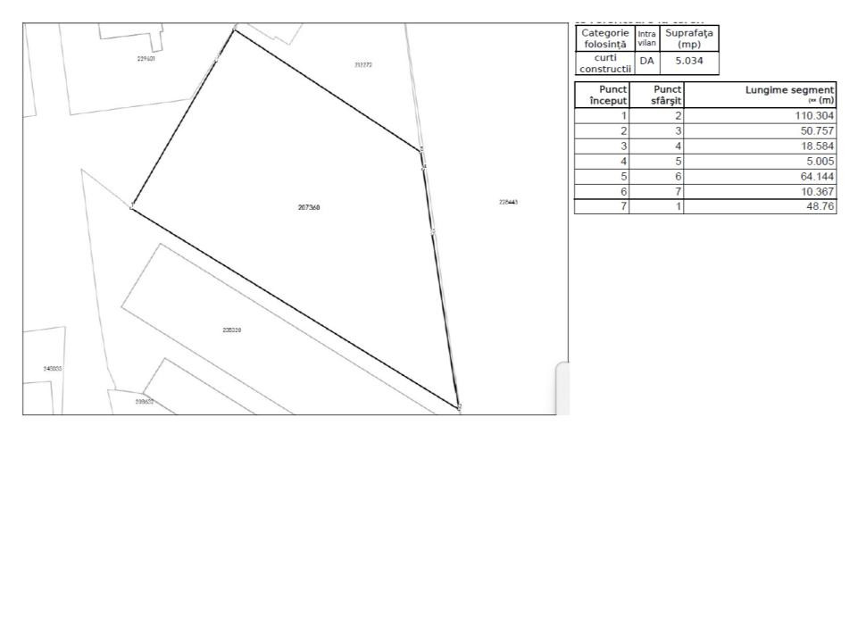
- S. teren:5034.00 mp
- Front stradal:30.00 m
- Nr. fronturi:1
- Clasificare teren:Intravilan
- Regim inaltime:S+D+P+14
Descriere
Teren intravilan destinat pentru dezvoltare rezidentiala, situat in zona M2 - cf. PUZ Sector 6 (in vigoare) - avand urmatorii coeficienti de constructie:
- CUT = 3,0 * ADC / mp teren = 15.105 mpc
- POT: 70% - cu posibilitatea de acoperire a restului terenului in proportie de 75% cu cladiri cu maximum 2 niveluri cu functiuni comerciale (inc. parcare supraetajata)
- regim de inaltime: P+14
Terenul are acces din Str. Violetelor - strada cu dublu sens, fiind situat la o distanta de 200 m fata de Bd. Timisoara si 950 m fata de statia de metrou Valea Ialomitei. In PUZ exista planificarea prelungirii str. Valea Lunga - conexiune directa cu Bd. Iuliu Maniu - asa incat terenul va avea deschidere la cale de acces pe intreaga latura nord-vestica, fara impact asupra posibilitatii de constructie.
Terenul este liber de sarcini.
Pentru detalii suplimentare va invitam sa ne contactati.
Citeste mai mult
- CUT = 3,0 * ADC / mp teren = 15.105 mpc
- POT: 70% - cu posibilitatea de acoperire a restului terenului in proportie de 75% cu cladiri cu maximum 2 niveluri cu functiuni comerciale (inc. parcare supraetajata)
- regim de inaltime: P+14
Terenul are acces din Str. Violetelor - strada cu dublu sens, fiind situat la o distanta de 200 m fata de Bd. Timisoara si 950 m fata de statia de metrou Valea Ialomitei. In PUZ exista planificarea prelungirii str. Valea Lunga - conexiune directa cu Bd. Iuliu Maniu - asa incat terenul va avea deschidere la cale de acces pe intreaga latura nord-vestica, fara impact asupra posibilitatii de constructie.
Terenul este liber de sarcini.
Pentru detalii suplimentare va invitam sa ne contactati.
Specificatii
Curent
Apa
Canalizare
Gaz
Catalin Socol
0727800403
Esti interesat de aceasta proprietate ?